ANTIQUITIES DEPARTMENT

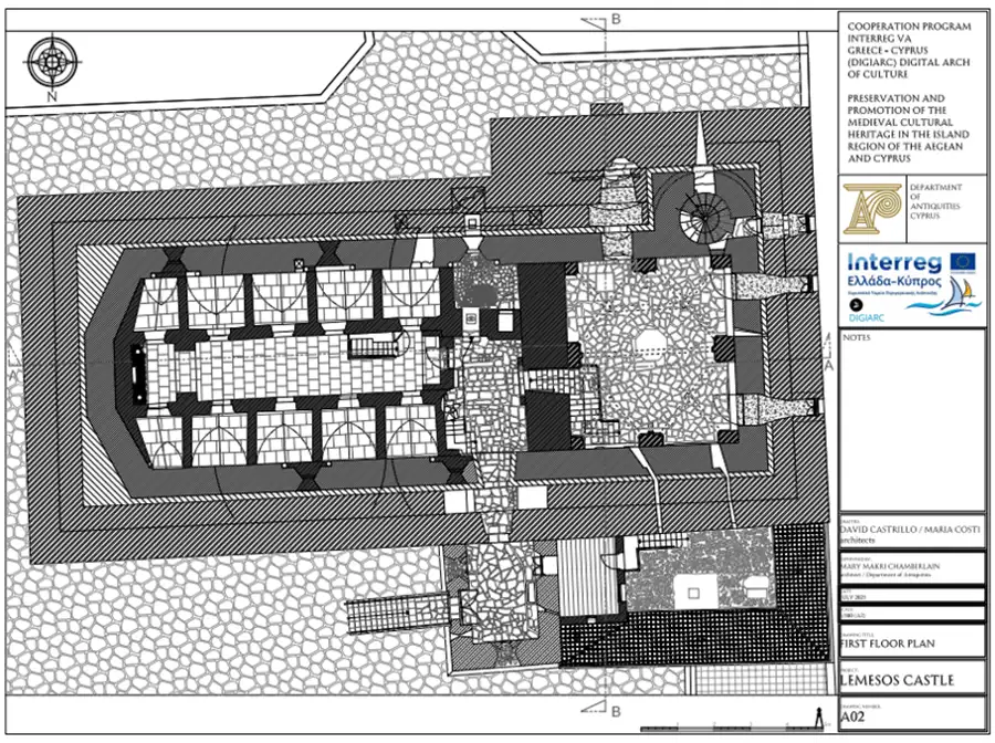
In a comprehensive and leading role as architects, we managed and executed conservation projects on over 40 historic buildings and monuments across Cyprus. Our responsibilities spanned the entire project lifecycle, from initial full architectural documentation and historical/architectural recording to the evaluation of pathologies, assessment, development, and implementation of emergency interventions and prioritization of tasks. We engaged the full architectural documentation, historical, and architectural recording of the built heritage of medieval castles and towers across Cyprus: Preservation and Promotion of the Medieval Cultural Heritage in the Island Region of the Aegean and Cyprus. Furthermore, we undertook the design of the First Archaeological Park in Nicosia in collaboration with the Department of Antiquities, which involved developing sustainable conservation solutions and details, and designing proposed contemporary structures, uses, movements, materials, and landscape for the area. 

+Documentation of Medieval Castles and Towers of Cyprus (May 2019 – Sept. 2021) Cooperation Program Interreg Va Greece – Cyprus (‘INTERREG DigiArc’)

+ Documentation, evaluation, assessment, development, and implementation of conservation projects on more than 40 historic buildings (May 2009 – June 2013) and monuments around Cyprus.

+ Survey and restoration of Urban Landscape of Lefkara REHABIMED (Collaboration with V. Ierides)

+Documentation of Medieval Castles and Towers of Cyprus (‘INTERREG DigiArc’)

+Documentation of Medieval Castles and Towers of Cyprus (‘INTERREG DigiArc’)

+ Documentation, evaluation and assessment of conservation projects on more than 40 historic buildings.

+ Documentation, evaluation and assessment of conservation projects on more than 40 historic buildings.

+ Survey and restoration of Urban Landscape of Lefkara REHABIMED.

+ Survey and restoration of Urban Landscape of Lefkara REHABIMED.